6-59 George Street, UNLEY
Price Reduced - Must be Sold!
This beautifully presented character laden townhouse is at the rear of a small group of six and in a fantastic location.
Nestled behind a high brush fence you enter into a delightful garden.
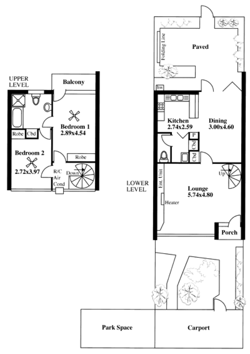
The townhouse itself boasts raked ceilings, loads of built ins, gas heating and air conditioning. The large formal lounge has a full wall of built in shelving and picture windows to the garden whilst the dining area has a large built in wine rack.
The adjoining kitchen has a dishwasher & stainless steel hotplates. Also on this level is a separate laundry and 2nd WC.
The Bi-fold cafe doors allow loads of North facing light into the dining and lead out to the private rear garden which has access to the rear lane which is just a short work to the Earl of Leicester Hotel.
Upstairs are two bedrooms, both with robes, and a large brand new two way bathroom. A small balcony off the main bedroom is a delightful place to have your morning coffee.
There is parking for two vehicles - one undercover.
A further bonus is that a small pet is allowed provided it does not constitute a nuisance.
Realistically priced for definite sale!
Nestled behind a high brush fence you enter into a delightful garden.
The townhouse itself boasts raked ceilings, loads of built ins, gas heating and air conditioning. The large formal lounge has a full wall of built in shelving and picture windows to the garden whilst the dining area has a large built in wine rack.
The adjoining kitchen has a dishwasher & stainless steel hotplates. Also on this level is a separate laundry and 2nd WC.
The Bi-fold cafe doors allow loads of North facing light into the dining and lead out to the private rear garden which has access to the rear lane which is just a short work to the Earl of Leicester Hotel.
Upstairs are two bedrooms, both with robes, and a large brand new two way bathroom. A small balcony off the main bedroom is a delightful place to have your morning coffee.
There is parking for two vehicles - one undercover.
A further bonus is that a small pet is allowed provided it does not constitute a nuisance.
Realistically priced for definite sale!

