7 King Edward Avenue, HAWTHORN
Sold By Andrew Downing!
Majestic On King Edward!
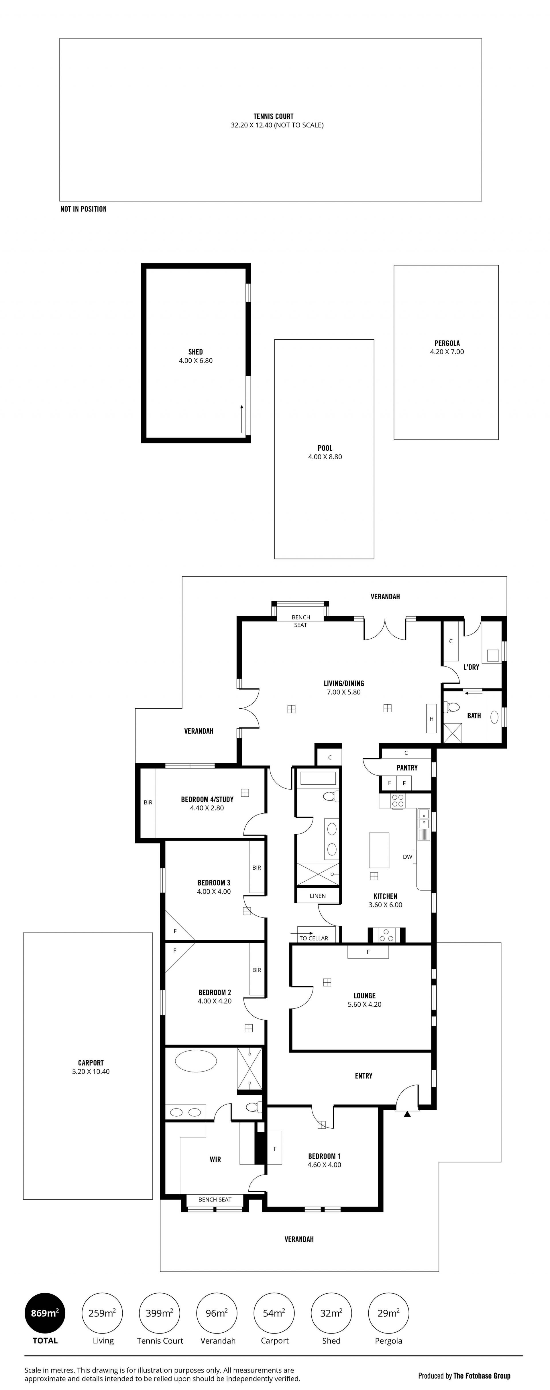
Perfectly positioned on one of Hawthorn's best tree lined streets sits this imposing, return verandah Bungalow. Set on 1777 sqm of beautiful botanical gardens which includes a sparkling heated Pool, full size Tennis Court and superb indoor and outdoor entertaining areas you will feel like royalty all year round.
Very rarely do homes of this size and land holding become available in Hawthorn and for around 30 years this magnificent, renovated Bungalow has been the perfect family home and entertainer to the current owners. The home has been extended and upgraded throughout their time and is now ready to be enjoyed by the next lucky family.
The Why To Buy 🙂
4 Large double bedrooms all with built in robes
Luxurious master suite with walk in robe and opulent ensuite
Expansive separate living/dining & lounge areas
Lovely French Provincial/ country style kitchen with huge pantry, gas cooking and original wood burning stove
Gorgeous array of heritage features throughout
Superb dry Wine cellar for approximately 500 bottles
Separate laundry with 3rd bathroom, perfect for pool use
Sparkling solar heated pool
Large undercover outdoor entertaining area
Full size synthetic Tennis court with lights
Huge land holding of 1777sqm with lovely manicured gardens
Unmetered Bore which services all garden watering automatically
Large workshop/ garden shed
4 Undercover car parks side by side
With Hawthorn Oval just across the road and easy access to local shopping such as King William and Unley Roads and with many of Adelaide's best Private and Public schools close by you are perfectly positioned to enjoy all the benefits of living in this prestigious, sought after suburb.
For any further information please contact, Andrew Downing on 0404 882 311.
All information provided has been obtained from sources we believe to be accurate, however, we cannot guarantee the information is accurate and we accept no liability for any errors or omissions (including but not limited to a property's land size, floor plans and size, building age and condition) Interested parties should make their own enquiries and obtain their own legal advice.
Perfectly positioned on one of Hawthorn's best tree lined streets sits this imposing, return verandah Bungalow. Set on 1777 sqm of beautiful botanical gardens which includes a sparkling heated Pool, full size Tennis Court and superb indoor and outdoor entertaining areas you will feel like royalty all year round.
Very rarely do homes of this size and land holding become available in Hawthorn and for around 30 years this magnificent, renovated Bungalow has been the perfect family home and entertainer to the current owners. The home has been extended and upgraded throughout their time and is now ready to be enjoyed by the next lucky family.
The Why To Buy 🙂
4 Large double bedrooms all with built in robes
Luxurious master suite with walk in robe and opulent ensuite
Expansive separate living/dining & lounge areas
Lovely French Provincial/ country style kitchen with huge pantry, gas cooking and original wood burning stove
Gorgeous array of heritage features throughout
Superb dry Wine cellar for approximately 500 bottles
Separate laundry with 3rd bathroom, perfect for pool use
Sparkling solar heated pool
Large undercover outdoor entertaining area
Full size synthetic Tennis court with lights
Huge land holding of 1777sqm with lovely manicured gardens
Unmetered Bore which services all garden watering automatically
Large workshop/ garden shed
4 Undercover car parks side by side
With Hawthorn Oval just across the road and easy access to local shopping such as King William and Unley Roads and with many of Adelaide's best Private and Public schools close by you are perfectly positioned to enjoy all the benefits of living in this prestigious, sought after suburb.
For any further information please contact, Andrew Downing on 0404 882 311.
All information provided has been obtained from sources we believe to be accurate, however, we cannot guarantee the information is accurate and we accept no liability for any errors or omissions (including but not limited to a property's land size, floor plans and size, building age and condition) Interested parties should make their own enquiries and obtain their own legal advice.

