7 Malcolm Road, FLAGSTAFF HILL
Excellence Everywhere in Prestige Craigburn Estate
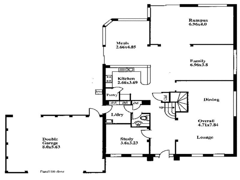
This magnificent two storey property is certainly a place you will be proud to call home! Built by Henley Homes in 1998 it has been designed to exacting standards with attention to detail both inside and out. Beautifully landscaped gardens lead to the wide welcoming entrance. The lower level comprises a large formal lounge and dining room with feature gas log fire and bi-fold doors to retain the warmth and privacy for the parents. A large study is situated at the front of the home whilst the stunning kitchen with stainless steel appliances is the hub of the downstairs area and adjoins the large casual meals area, family room and rumpus room. Beautiful tiling flows throughout these areas which boast large picture windows to provide loads of natural light throughout the home. The laundry and 3rd Wc are also on this level.Upstairs are four large bedrooms with built in robes,a magnificent ensuite with spa, main bathroom and a large play area for the children.The home is beautifully presented throughout and also offers ducted evaporative cooling and gas heating. The gardens have been well designed and provide a large level playing area for the children. Double garage UMR. All in all, a simply superb property. Why build when you can just move in and enjoy. Long settlement available.

