8 St Georges Avenue, GLANDORE
New Release - Original Bungalow with Character and Charm !
Set in one of the most sought after pockets of Glandore, this stunning 1930's stone-fronted bungalow offers loads of character that can be enjoyed now, lovely high ceilings, and ducted airconditioning for year round comfort plus loads of room to extend as your family grows.
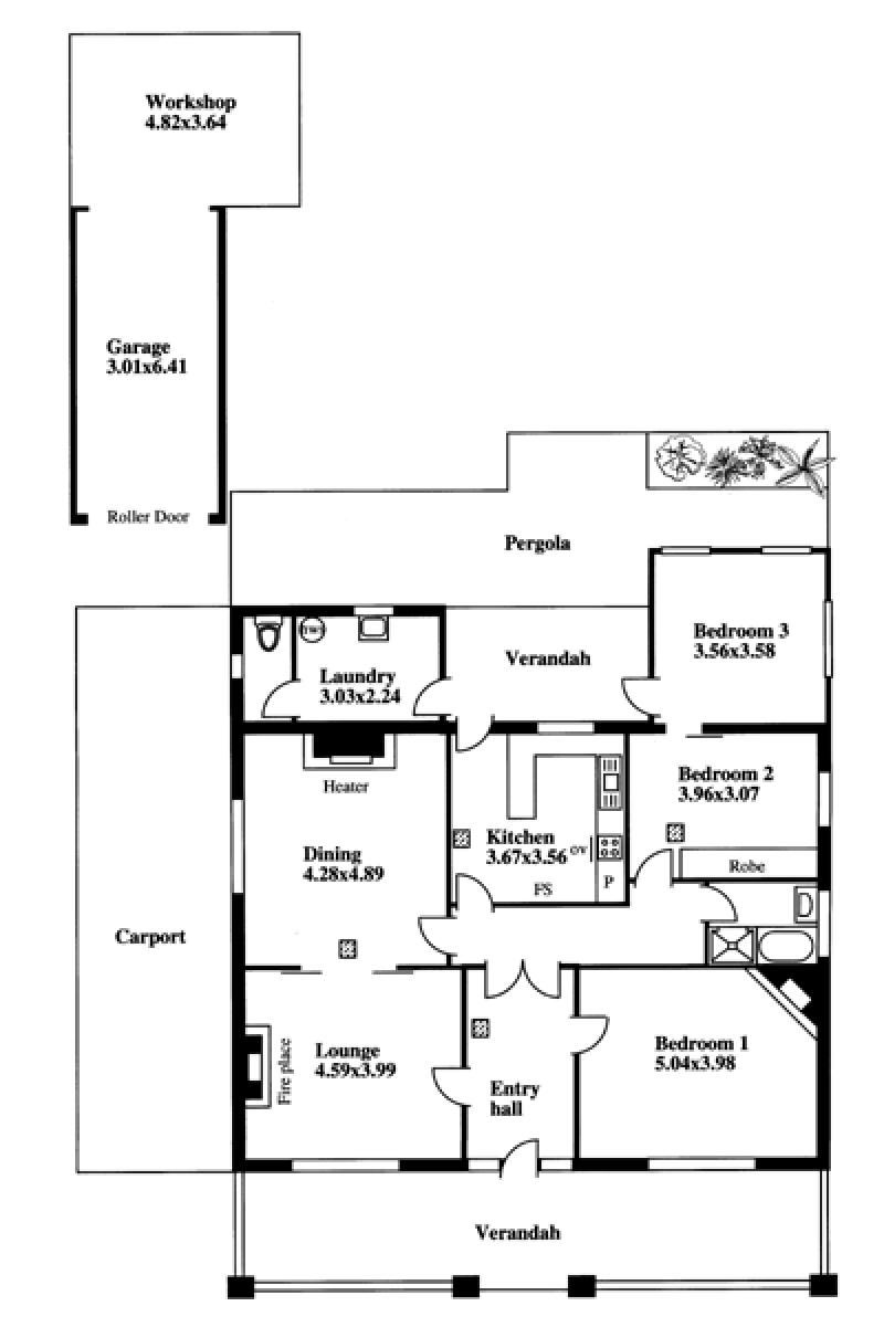
Situated in a wide and graceful tree lined street, with nearby kindy just a few minutes walk, this residence provides three bedrooms, the master bedroom and living room feature open fireplace's, and the huge separate formal dining room includes additional gas heating.
Kept in exceptional condition are the classic ornate ceilings, that feature in the living areas and main bedroom and with high ceilings and large feature windows, there is plenty of natural sunlight throughout the hallways, living rooms and bedroom areas.
Through the main entrance (with chandelier) is the open kitchen which leads outside into the private and peaceful backyard. There you will find an undercover verandah, perfect for entertaining as well as a large lawn area surrounded by mature shady trees and lots of fruit.
Other features include huge laundry, expansive shady front lawn and yard, enormous front verandah, original timber floors under existing carpets, big lock up garage and workshop area, room for at least 2 cars and or a boat or caravan under the carport.
In such a great location in a much sought after tightly held suburb, close to bus, train, tram and good local shopping all just a few minutes to Adelaide, for further details contact our local property consultant Rick Connock on 0403 225 666
FORTHCOMING AUCTION UNLESS SOLD BEFORE HAND
RLA46284
Situated in a wide and graceful tree lined street, with nearby kindy just a few minutes walk, this residence provides three bedrooms, the master bedroom and living room feature open fireplace's, and the huge separate formal dining room includes additional gas heating.
Kept in exceptional condition are the classic ornate ceilings, that feature in the living areas and main bedroom and with high ceilings and large feature windows, there is plenty of natural sunlight throughout the hallways, living rooms and bedroom areas.
Through the main entrance (with chandelier) is the open kitchen which leads outside into the private and peaceful backyard. There you will find an undercover verandah, perfect for entertaining as well as a large lawn area surrounded by mature shady trees and lots of fruit.
Other features include huge laundry, expansive shady front lawn and yard, enormous front verandah, original timber floors under existing carpets, big lock up garage and workshop area, room for at least 2 cars and or a boat or caravan under the carport.
In such a great location in a much sought after tightly held suburb, close to bus, train, tram and good local shopping all just a few minutes to Adelaide, for further details contact our local property consultant Rick Connock on 0403 225 666
FORTHCOMING AUCTION UNLESS SOLD BEFORE HAND
RLA46284

