9 Foster Street, FORESTVILLE
SOLD
Auction 16/10/21 at 12:00pm. Contact Robbie Leigh to discuss further
This neat, clear and low maintenance Torrens Titled property has gorgeous street appeal and located under 10 minutes from Adelaide CBD.
Perfectly positioned among Goodwood's highly praised schools and conveniences, this is a rare opportunity to capture a three bedroom property with both incredible location and lifestyle to offer!
Whether you are looking for low-maintenance living, a superb selection of cafes and culture, proximity to shopping on King William Road Hyde Park, this functional floorplan will compliment your choice of location. Be quick not to miss as this is set to sell by auction very soon!
Highlights:
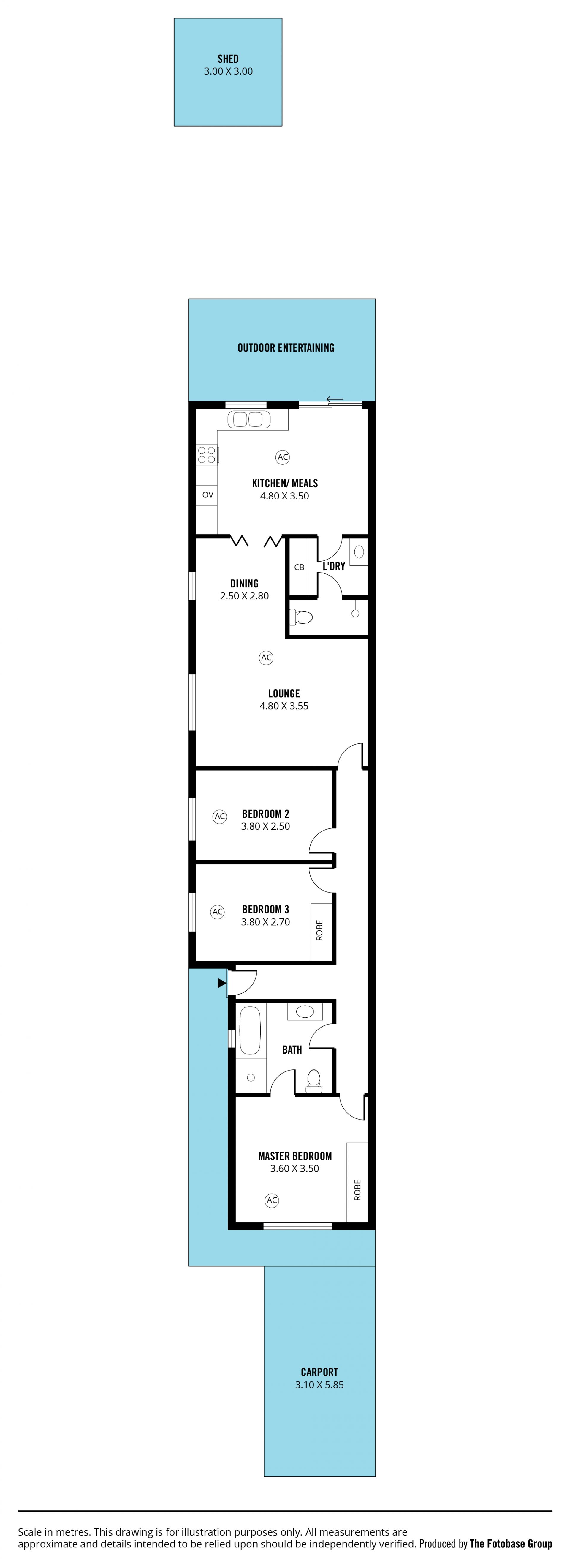
- Torrens titled
- Dual entrance bathroom (with shower and separate bath)
- Ducted Daiken Reverse Cycle Air-Conditioning throughout
- Solid double brick build
- Main bedroom and bedroom two with built in robes
- New carpet in bedrooms
- Large living/dining room
- Second meals area
- Second shower and toilet
- New kitchen flooring
- Outdoor undercover area
- Good sized carport with gated frontage
- Garden shed on concrete base
- Perfectly positioned within 500m of St Thomas and Goodwood Primary Schools
- Just a short walk from the Goodwood Road's social precinct
- Close to several public transport options (train and bus)
Whether looking to build your investment property portfolio or simply looking for a home that's ready to move in and enjoy...
9 Foster Street Forestville is an opportunity that won't last long!
Disclaimer: All floor plans, photos and text are for illustration purposes only and are not intended to be part of any contract. All measurements are approximate and details intended to be relied upon should be independently verified.
This neat, clear and low maintenance Torrens Titled property has gorgeous street appeal and located under 10 minutes from Adelaide CBD.
Perfectly positioned among Goodwood's highly praised schools and conveniences, this is a rare opportunity to capture a three bedroom property with both incredible location and lifestyle to offer!
Whether you are looking for low-maintenance living, a superb selection of cafes and culture, proximity to shopping on King William Road Hyde Park, this functional floorplan will compliment your choice of location. Be quick not to miss as this is set to sell by auction very soon!
Highlights:
- Torrens titled
- Dual entrance bathroom (with shower and separate bath)
- Ducted Daiken Reverse Cycle Air-Conditioning throughout
- Solid double brick build
- Main bedroom and bedroom two with built in robes
- New carpet in bedrooms
- Large living/dining room
- Second meals area
- Second shower and toilet
- New kitchen flooring
- Outdoor undercover area
- Good sized carport with gated frontage
- Garden shed on concrete base
- Perfectly positioned within 500m of St Thomas and Goodwood Primary Schools
- Just a short walk from the Goodwood Road's social precinct
- Close to several public transport options (train and bus)
Whether looking to build your investment property portfolio or simply looking for a home that's ready to move in and enjoy...
9 Foster Street Forestville is an opportunity that won't last long!
Disclaimer: All floor plans, photos and text are for illustration purposes only and are not intended to be part of any contract. All measurements are approximate and details intended to be relied upon should be independently verified.

