31 North Street, Adelaide
City-Fringe Office / Studio with Courtyard
FOR LEASE – Ideal for Office, Creative or Consulting Use
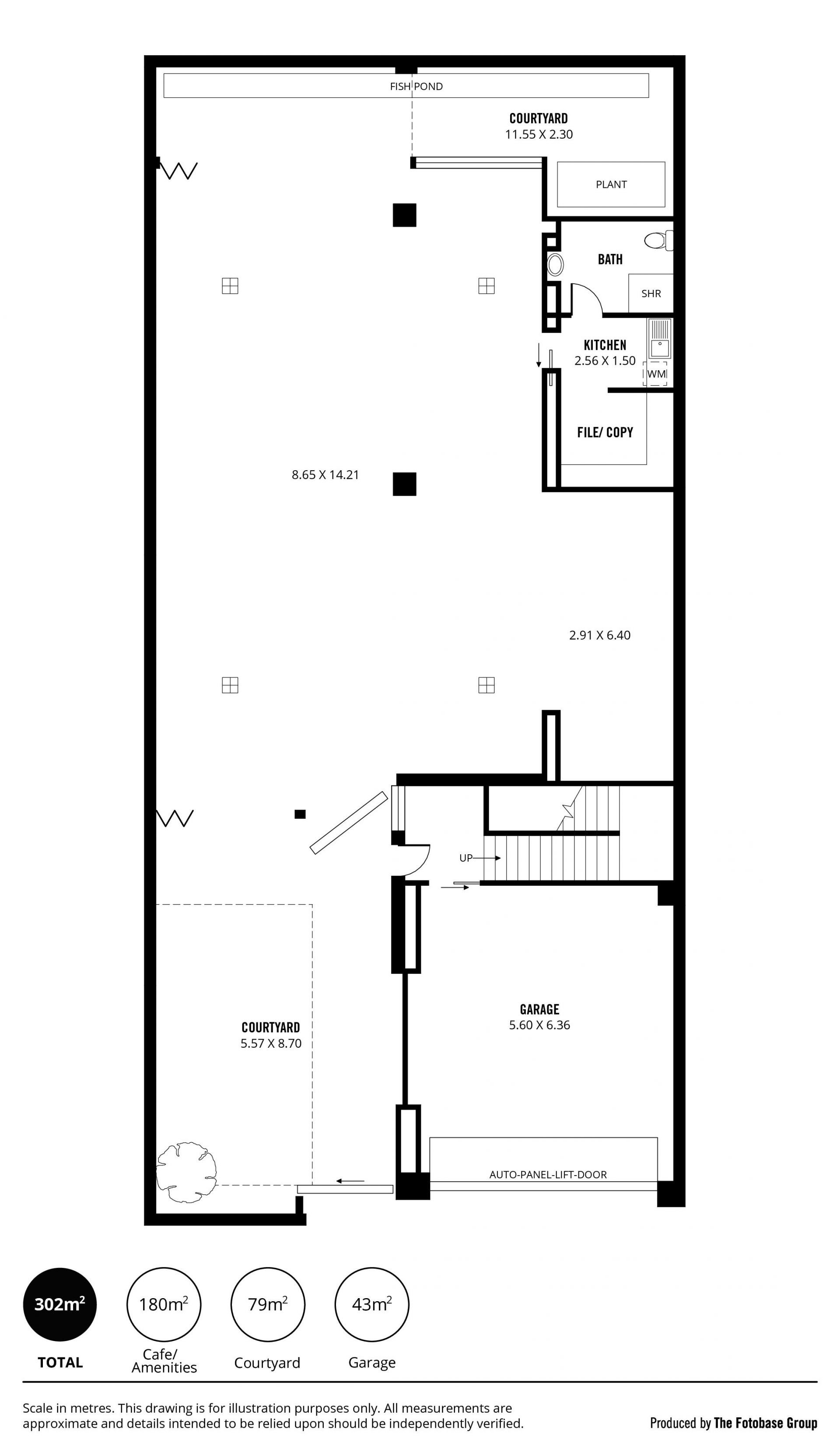
Positioned in a tightly held city-fringe pocket, this unique ground-level tenancy offers a light-filled, character-rich workspace centred around a private internal courtyard.
Blending modern finishes with exposed external brickwork and polished concrete floors, the property provides an inspiring environment well suited to creative, professional or consulting occupiers seeking something beyond a standard office layout.
The flexible open-plan configuration is complemented by breakout areas, amenities, kitchen facilities and a secure garage, allowing businesses to occupy with minimal setup while tailoring the space to suit their operational needs.
With excellent natural light throughout and direct street access, this tenancy presents a rare opportunity to secure a distinctive workspace in a highly accessible city location.
Property Highlights:
- Approx. 302 sqm of use (including courtyard and garage area)
- Expansive open-plan layout with excellent flexibility
- Central landscaped courtyard providing outstanding natural light
- Polished concrete floors
- Kitchenette and bathroom amenities
- Dedicated storage / utility area
- Secure on-site garage (1 car) with roller door access
- Reverse cycle air conditioning
- Direct street frontage and entry
- Contemporary presentation with strong creative appeal
Suitable For:
- Professional services
- Creative studios / agencies
- Consulting or advisory firms
- Allied health or wellness operators
- Showroom-style office users
This tenancy offers a rare combination of indoor–outdoor workspace, architectural character and city-fringe convenience.
For further information or to arrange an inspection, please contact the leasing agents today.
Positioned in a tightly held city-fringe pocket, this unique ground-level tenancy offers a light-filled, character-rich workspace centred around a private internal courtyard.
Blending modern finishes with exposed external brickwork and polished concrete floors, the property provides an inspiring environment well suited to creative, professional or consulting occupiers seeking something beyond a standard office layout.
The flexible open-plan configuration is complemented by breakout areas, amenities, kitchen facilities and a secure garage, allowing businesses to occupy with minimal setup while tailoring the space to suit their operational needs.
With excellent natural light throughout and direct street access, this tenancy presents a rare opportunity to secure a distinctive workspace in a highly accessible city location.
Property Highlights:
- Approx. 302 sqm of use (including courtyard and garage area)
- Expansive open-plan layout with excellent flexibility
- Central landscaped courtyard providing outstanding natural light
- Polished concrete floors
- Kitchenette and bathroom amenities
- Dedicated storage / utility area
- Secure on-site garage (1 car) with roller door access
- Reverse cycle air conditioning
- Direct street frontage and entry
- Contemporary presentation with strong creative appeal
Suitable For:
- Professional services
- Creative studios / agencies
- Consulting or advisory firms
- Allied health or wellness operators
- Showroom-style office users
This tenancy offers a rare combination of indoor–outdoor workspace, architectural character and city-fringe convenience.
For further information or to arrange an inspection, please contact the leasing agents today.

