12 Quartz Place, SHEIDOW PARK
5 Star Living!
Imagine the opportunity to own a home in one of the South's finest estates Southbank Estate'. Look no further as the opportunity is knocking on your door. This immaculately presented and quality built two-storey home could be yours.
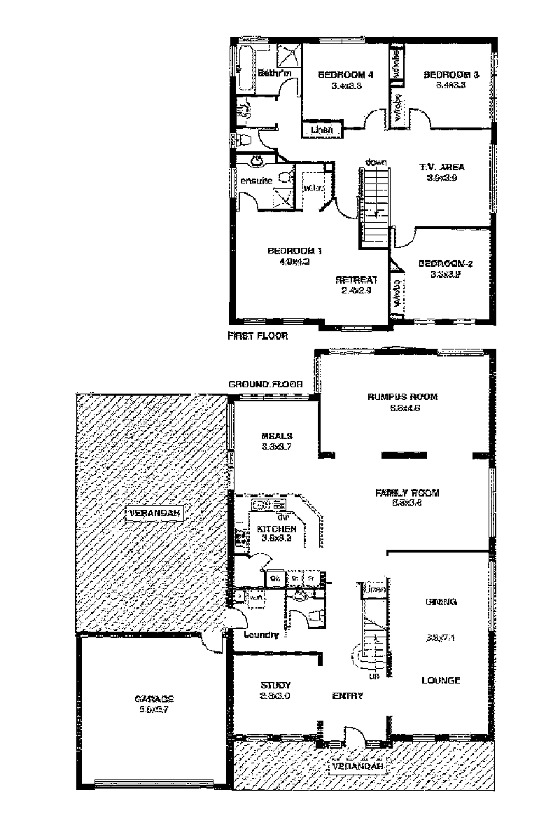
Immense street appeal sets the scene for the outstanding property that follows, the lower level offering the perfect floorplan that incorporates a large study, formal lounge, casual living area and separate formal and informal dining, all of exceptional fixtures and fittings, blending seamlessly. The kitchen will impress the chef' with loads of cupboard space, plenty of functional bench space for the cook to prepare, stainless steel appliances, walk in pantry and dishwasher. The homes third toilet is also featured on this level
This wonderful home offers so much to any buyer! The aesthetically pleasing staircase leads upstairs to where the homes four spacious double bedroom, all with robes are situated. Huge master suite includes luxurious ensuite and sizable walk in robe. Both western suites offer balcony access, from where ocean and rural views can be enjoyed. The upper level also comprises yet another large formal living or family retreat area and three way bathroom.
Pitched roof entertaining, tool shed and beautifully landscaped gardens ensure that the impression continues even beyond your back door.
Peacefully situated in a dress circle location and with lovely reserves nearby, this property oozes style and panache throughout.
This spectacular residence will fulfill all your wishes and with nothing left to do but move in, you can't go wrong. Extra features consist of reverse cycle air conditioning for all year round comfort, climate-control instant hot water system, security system for total peace of mind and double garage with auto doors.
This executive residence is wonderfully presented both inside and out offering the complete package for someone who wants the very best. Enquire now! (RLA 46284)
Immense street appeal sets the scene for the outstanding property that follows, the lower level offering the perfect floorplan that incorporates a large study, formal lounge, casual living area and separate formal and informal dining, all of exceptional fixtures and fittings, blending seamlessly. The kitchen will impress the chef' with loads of cupboard space, plenty of functional bench space for the cook to prepare, stainless steel appliances, walk in pantry and dishwasher. The homes third toilet is also featured on this level
This wonderful home offers so much to any buyer! The aesthetically pleasing staircase leads upstairs to where the homes four spacious double bedroom, all with robes are situated. Huge master suite includes luxurious ensuite and sizable walk in robe. Both western suites offer balcony access, from where ocean and rural views can be enjoyed. The upper level also comprises yet another large formal living or family retreat area and three way bathroom.
Pitched roof entertaining, tool shed and beautifully landscaped gardens ensure that the impression continues even beyond your back door.
Peacefully situated in a dress circle location and with lovely reserves nearby, this property oozes style and panache throughout.
This spectacular residence will fulfill all your wishes and with nothing left to do but move in, you can't go wrong. Extra features consist of reverse cycle air conditioning for all year round comfort, climate-control instant hot water system, security system for total peace of mind and double garage with auto doors.
This executive residence is wonderfully presented both inside and out offering the complete package for someone who wants the very best. Enquire now! (RLA 46284)

