12/23 Winifred, ADELAIDE
"NOTHING LEFT TO DO" IMMACULATELY PRESENTED SPACIOUS UNIT.
This well appointed apartment , nestled between the parklands and the Central market offers,
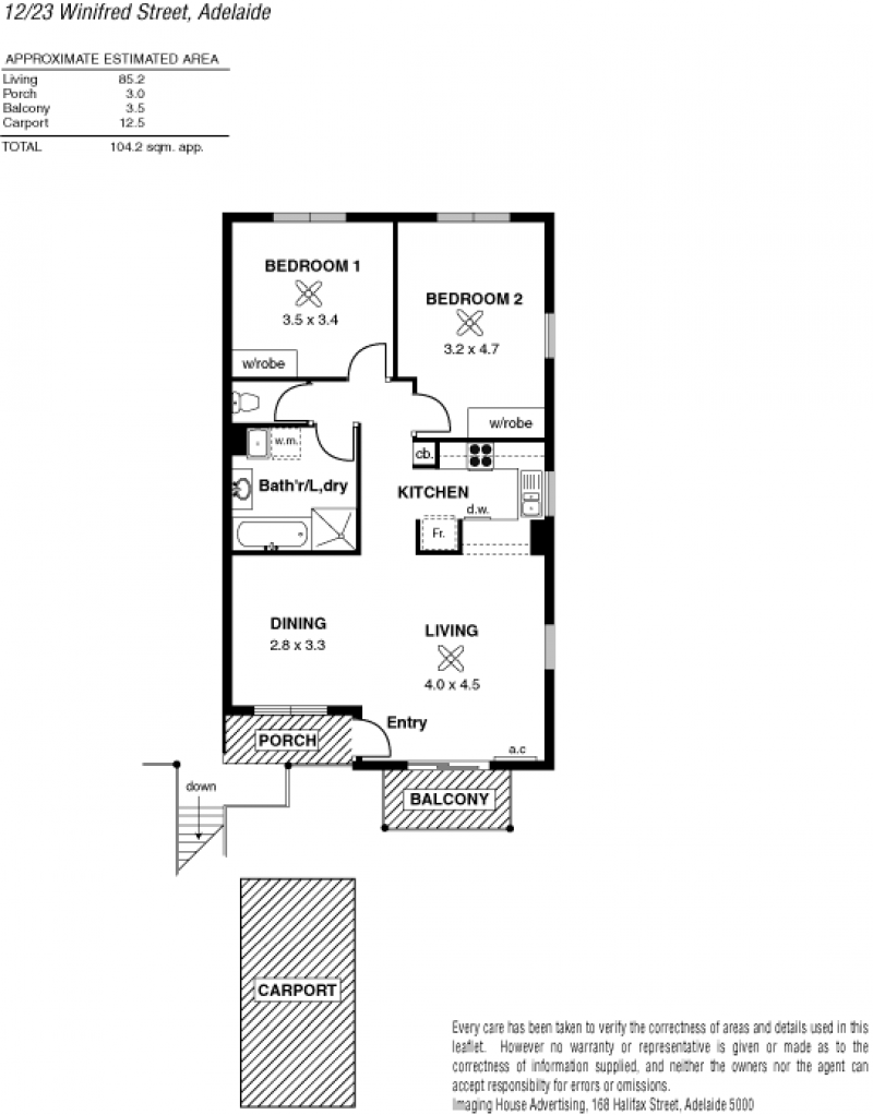
- 2 large bedrooms, both with b.i.r's & ceiling fans
- Huge open plan lounge and dining,
- Fully furnished
- Neat kitchen with gas cooking and abundant cupboard storage,
- Updated bathroom with laundry facilities
- Extra internal windows and private balcony
- Views of parklands from kitchen & bedroom,
- Recently painted throughout, r/c air - con
- 1 undercover car park,
This conveniently located apartment will appeal to the first home buyers, close to the great restaurants of Gouger Street as well as the iconic Central Markets.
Investors take note, can be rented between $360 - $390 per week.
Details: Andrew Downing 0404 882 311
- 2 large bedrooms, both with b.i.r's & ceiling fans
- Huge open plan lounge and dining,
- Fully furnished
- Neat kitchen with gas cooking and abundant cupboard storage,
- Updated bathroom with laundry facilities
- Extra internal windows and private balcony
- Views of parklands from kitchen & bedroom,
- Recently painted throughout, r/c air - con
- 1 undercover car park,
This conveniently located apartment will appeal to the first home buyers, close to the great restaurants of Gouger Street as well as the iconic Central Markets.
Investors take note, can be rented between $360 - $390 per week.
Details: Andrew Downing 0404 882 311

