13 Meredith Street, NEWTON
A RARE OFFERING IN THE TIGHTLY HELD & POPULAR INDUSTRIAL PRECINCT OF NEWTON
Dont miss this fantastic opportunity to secure an outstanding site to accommodate your own business or as an investment perfect for your future nest egg. This property offers large shedding with add on potential all located approximately 10kms from Adelaides CBD.
The property is zoned Urban Employment by the City of Campbelltown Council and offers the following features:
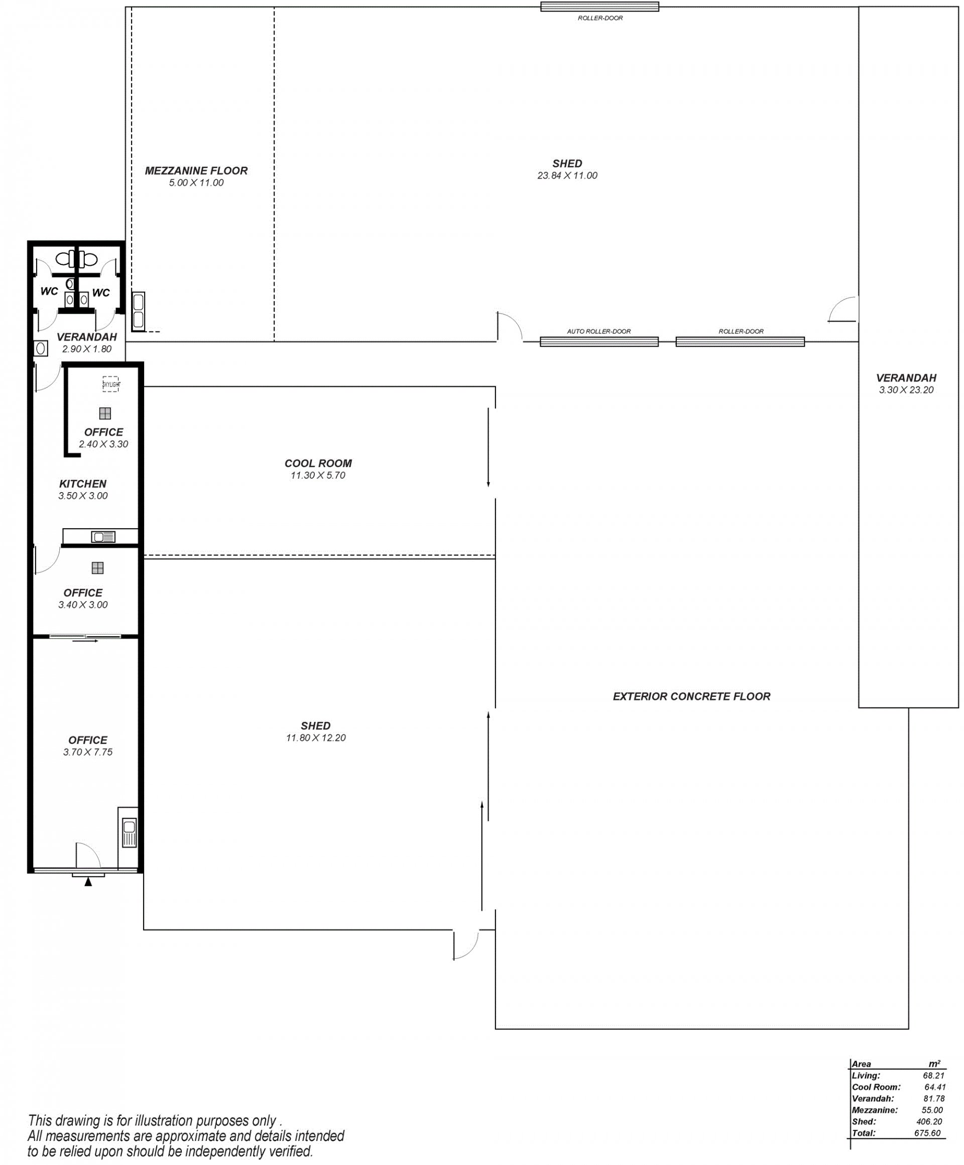
- Over 600sqm approximately of improvements
- 3.65m high automatic roller doors to the rear shed
- Near completed mezzanine of approximately 55sqm
- Large 2,147sqm approx. allotment with 30m frontage and 70m depth
- Office and storeroom with kitchen facilities
- A large cool room approximately 5.7m x 11.30m
- Separate male and female toilet facilities
- Security Alarm System
- Perimeter electric fencing with security key pad access
- Large tower with two mounted flood lights to light up the outdoor parking area
- Extensive off street car parking space
Surrounded by other quality local businesses this represents fantastic buying within a high demand area.
For Sale by Expressions of Interest closing Tuesday 24th July 2018 at 5pm.
For further details regarding the sale of this property, contact Grace Centofanti on 0412 118 685 or Nathan Gherghetta on 0448 206 829.
Property Code: 1324
The property is zoned Urban Employment by the City of Campbelltown Council and offers the following features:
- Over 600sqm approximately of improvements
- 3.65m high automatic roller doors to the rear shed
- Near completed mezzanine of approximately 55sqm
- Large 2,147sqm approx. allotment with 30m frontage and 70m depth
- Office and storeroom with kitchen facilities
- A large cool room approximately 5.7m x 11.30m
- Separate male and female toilet facilities
- Security Alarm System
- Perimeter electric fencing with security key pad access
- Large tower with two mounted flood lights to light up the outdoor parking area
- Extensive off street car parking space
Surrounded by other quality local businesses this represents fantastic buying within a high demand area.
For Sale by Expressions of Interest closing Tuesday 24th July 2018 at 5pm.
For further details regarding the sale of this property, contact Grace Centofanti on 0412 118 685 or Nathan Gherghetta on 0448 206 829.
Property Code: 1324

