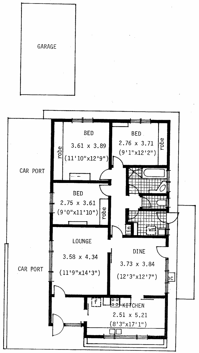
16 Clifford Street, ASCOT PARK
Perfect Low Maintenance Home!
Conveniently situated this 3 bedroom solid brick residence is a short stroll to local shops and transport. An ideal opportunity for first home owners, retiree's or investors this neat property offers good sized bedrooms with built in robes, a galley style kitchen with a separate formal dine and a lounge room. A complete and comfortable package with reverse cycle heating and cooling, separate toilet, bathroom and laundry. Externally the allotment of around 500m2 ensures easy maintenance whilst still providing room for a rear shed, double length carport behind a secure roller door and a small lawned area at the rear. A great home in a top spot!

