42B Nilpena Avenue, Park Holme
Investment Opportunity - Big On Living, Low On Maintenance
Please contact Krista Eime from Magain Real Estate for all your property advice.
Tenanted until November 2026 to good tenants.
This beautiful single-level home, set back privately from the street, offers the perfect combination of modern living and unbeatable convenience. Ideally positioned between the beach and the city, it's a fantastic opportunity for investors.
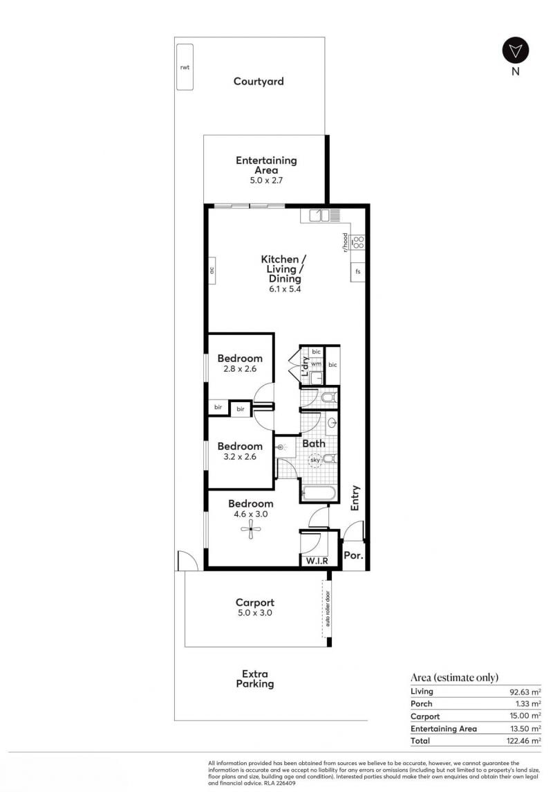
Inside, you'll find a welcoming and functional floorplan featuring an open plan layout, dining adjacent the modern kitchen and 2-way bathroom. There is also a 2nd toilet, perfect for when guests visit and plenty of storage space.
The home boasts three generous sized bedrooms, with the master suite having a large walk-in robe, ceiling fan and access to the 2-way bathroom. Bedrooms two and three both have BIR for added comfort.
At the rear of the home is the well-equipped kitchen which comes with loads of storage, stainless steel gas cooker and dishwasher. The home also features a split system air conditioner, ensuring year-round comfort, while sleek timber flooring adds a touch of modern elegance throughout. The living and dining area seamlessly open out to a low maintenance private area where you can entertain guests or simply relax.
Parking is a breeze with a secure carport with an automatic roller door and there is also additional off-street parking for a second vehicle.
Other features we LOVE about this home are:
- Located in a quiet neighbourhood offering convenience between the city and the sea
- Open plan living with a modern kitchen
- Carpet to all bedrooms
- 2-way bathroom for convenience
- Perfectly placed hidden laundry
- Undercover entertaining area - perfect for summer BBQ's
- Secure garage with automatic roller door
- Close to Park Holme Shopping Centre, local parks and schools
This home is more than just a property; it's a gateway to a fulfilling and vibrant lifestyle. Don't miss the chance to make this exceptional home your own.
Specifications:
Year Built / 2009
Council / Marion
Council Rates / $1,388 PA
Water Rates / $176 PQ
Community Fee (Insurance Only) / $175.50 PA
Rental Estimate / $630 - $650 PW
All floor plans, photos and text are for illustration purposes only and are not intended to be part of any contract. All measurements are approximate and details intended to be relied upon should be independently verified. (RLA 310071)
Tenanted until November 2026 to good tenants.
This beautiful single-level home, set back privately from the street, offers the perfect combination of modern living and unbeatable convenience. Ideally positioned between the beach and the city, it's a fantastic opportunity for investors.
Inside, you'll find a welcoming and functional floorplan featuring an open plan layout, dining adjacent the modern kitchen and 2-way bathroom. There is also a 2nd toilet, perfect for when guests visit and plenty of storage space.
The home boasts three generous sized bedrooms, with the master suite having a large walk-in robe, ceiling fan and access to the 2-way bathroom. Bedrooms two and three both have BIR for added comfort.
At the rear of the home is the well-equipped kitchen which comes with loads of storage, stainless steel gas cooker and dishwasher. The home also features a split system air conditioner, ensuring year-round comfort, while sleek timber flooring adds a touch of modern elegance throughout. The living and dining area seamlessly open out to a low maintenance private area where you can entertain guests or simply relax.
Parking is a breeze with a secure carport with an automatic roller door and there is also additional off-street parking for a second vehicle.
Other features we LOVE about this home are:
- Located in a quiet neighbourhood offering convenience between the city and the sea
- Open plan living with a modern kitchen
- Carpet to all bedrooms
- 2-way bathroom for convenience
- Perfectly placed hidden laundry
- Undercover entertaining area - perfect for summer BBQ's
- Secure garage with automatic roller door
- Close to Park Holme Shopping Centre, local parks and schools
This home is more than just a property; it's a gateway to a fulfilling and vibrant lifestyle. Don't miss the chance to make this exceptional home your own.
Specifications:
Year Built / 2009
Council / Marion
Council Rates / $1,388 PA
Water Rates / $176 PQ
Community Fee (Insurance Only) / $175.50 PA
Rental Estimate / $630 - $650 PW
All floor plans, photos and text are for illustration purposes only and are not intended to be part of any contract. All measurements are approximate and details intended to be relied upon should be independently verified. (RLA 310071)

