17 Conington Crescent, MORPHETT VALE
attention 1st home buyers
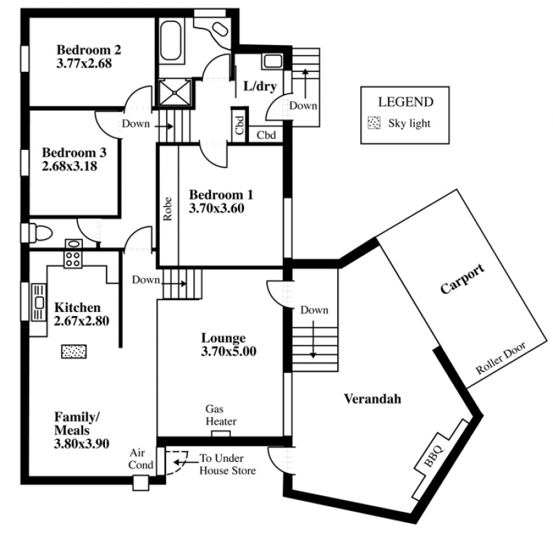
With its split level architectural design, this character filled double brick home offers the lucky new owners space inside to relax and outside to entertain. Situated in a quiet pocket of Morphett Vale, yet still close by to schools & local shopping this home is perfect for first home buyers or astute investors looking for a solid investment.
With three bedrooms, large master featuring built in robes, sunken formal lounge over looked by the dining area and kitchen adjacent. Outside is a private enclosed undercover entertaining area, which can be enjoyed year round with family & friends and features a built in barbeque area.
Other features include air conditioning & cosy gas heating for year round comfort, a 1.5kw solar system, skylight, lockup carport, landscaped garden & backyard with a tropical feel and secure under house storage. Don't miss out on this great value opportunity; call Mike & Zoe for inspection details today.
With three bedrooms, large master featuring built in robes, sunken formal lounge over looked by the dining area and kitchen adjacent. Outside is a private enclosed undercover entertaining area, which can be enjoyed year round with family & friends and features a built in barbeque area.
Other features include air conditioning & cosy gas heating for year round comfort, a 1.5kw solar system, skylight, lockup carport, landscaped garden & backyard with a tropical feel and secure under house storage. Don't miss out on this great value opportunity; call Mike & Zoe for inspection details today.

