18 Barbara Avenue, MORPHETT VALE
Under Contract
Now under Contract...
A property like this won't be on the market for long...
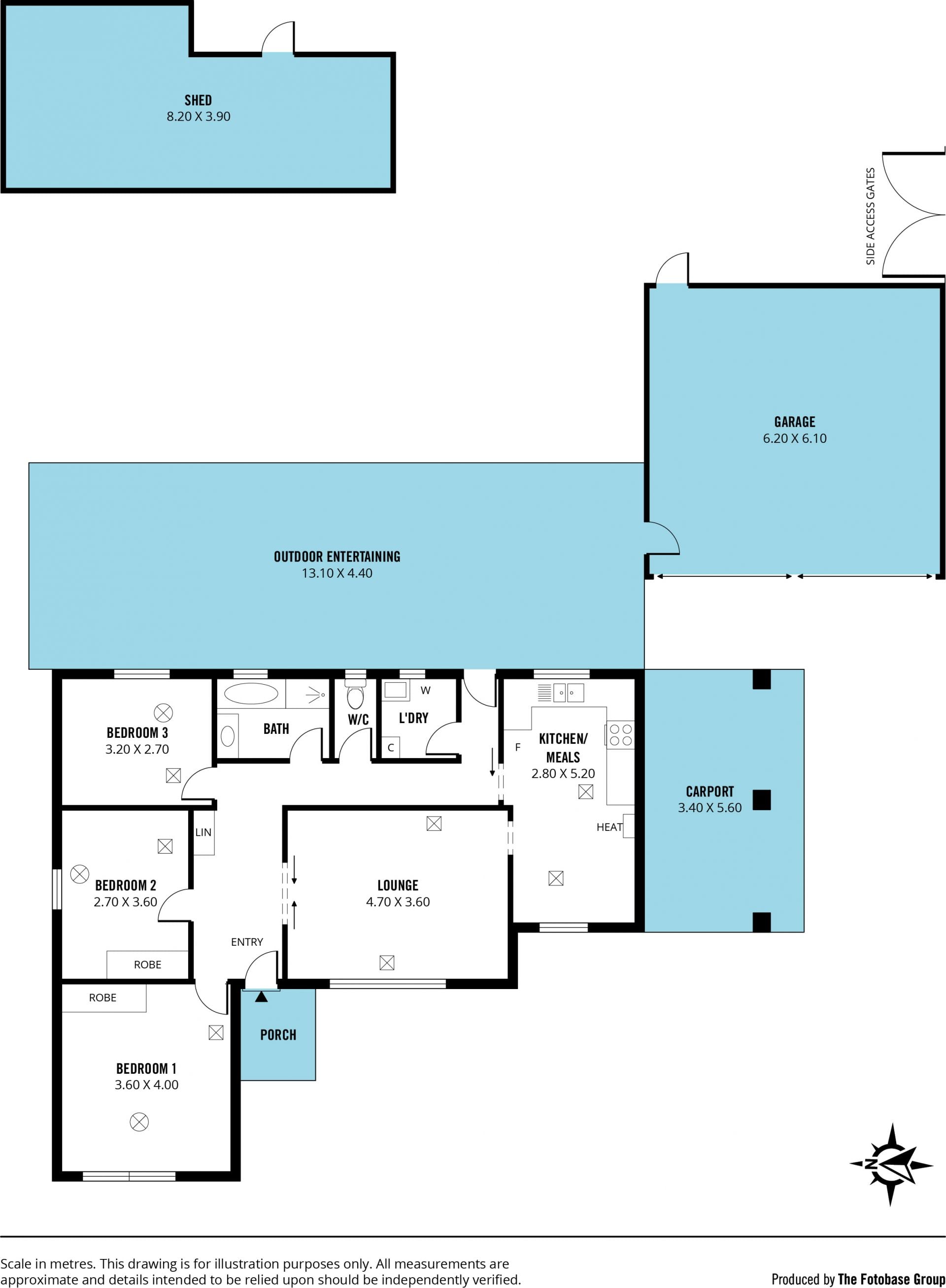
This home is sitting on a spacious 730m2 corner block, neat and tidy, outdoor entertaining, double garage and shedding, large side access gate, ready to develop (subject to council consent) or simply move-in ready! It has a functional floor plan and plenty of room for kids and pets to play outside.
This home is ideal for first home buyers, investors or those looking to downsize without downgrading on space or lifestyle.
As for location, the property has public transport available just around the corner and only minutes from several ovals and playgrounds, schools & local amenities. There is also easy access to the coast, Shopping Centres or the Southern Expressway - Southern living doesn't get much better than this!
Highlights:
- Beautiful and spacious 730m2 corner block
- Solid double brick build
- Downlights
- Updated kitchen with stainless steel appliances and gas cooking
- Ducted gas heating throughout
- Ducted evaporative cooling throughout
- Three decent sized bedrooms with good natural lighting
- Bedrooms 1 and 2 with built in wardrobes
- Large outdoor undercover entertaining area
- Large garage/workshop with access to rear yard
- Carport with drive through access to garage/workshop
- Side gate access for caravan/trailer
- Beautiful and spacious front and rear lawn areas
- Second large garden shed
- Ample cupboard storage
- Fantastic public transport options
- Easy access to Southern Expressway
Look forward to seeing you at the open inspection soon!
A property like this won't be on the market for long...
This home is sitting on a spacious 730m2 corner block, neat and tidy, outdoor entertaining, double garage and shedding, large side access gate, ready to develop (subject to council consent) or simply move-in ready! It has a functional floor plan and plenty of room for kids and pets to play outside.
This home is ideal for first home buyers, investors or those looking to downsize without downgrading on space or lifestyle.
As for location, the property has public transport available just around the corner and only minutes from several ovals and playgrounds, schools & local amenities. There is also easy access to the coast, Shopping Centres or the Southern Expressway - Southern living doesn't get much better than this!
Highlights:
- Beautiful and spacious 730m2 corner block
- Solid double brick build
- Downlights
- Updated kitchen with stainless steel appliances and gas cooking
- Ducted gas heating throughout
- Ducted evaporative cooling throughout
- Three decent sized bedrooms with good natural lighting
- Bedrooms 1 and 2 with built in wardrobes
- Large outdoor undercover entertaining area
- Large garage/workshop with access to rear yard
- Carport with drive through access to garage/workshop
- Side gate access for caravan/trailer
- Beautiful and spacious front and rear lawn areas
- Second large garden shed
- Ample cupboard storage
- Fantastic public transport options
- Easy access to Southern Expressway
Look forward to seeing you at the open inspection soon!

