19 Tomsey Street, ADELAIDE
Sold By Andrew Downing, The City Specialist!
The Family Entertainer With A Location to Match.
This immaculate, Torrens Title Townhouse has been thoughtfully renovated with an emphasis on indoor/outdoor living and entertaining. The current owners can attest to many a happy day spent with family and friends enjoying a drink and a BBQ at the remodeled back of the property or just sitting back with a good book after a hard day! If you want to expend a little more energy you have the lovely Victoria Parklands only a couple of hundred metres away.
The Why To Buy 🙂
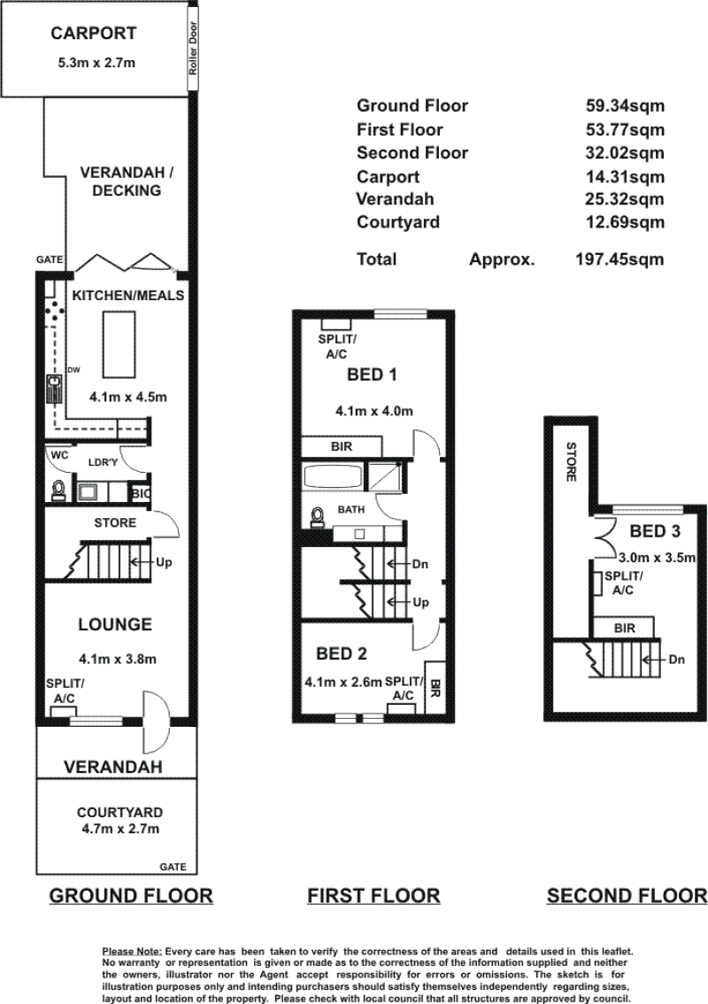
3 Large bedrooms
Superbly renovated kitchen with gas cooking and movable island bench
Spacious separate lounge
Lovely renovated bathroom
Reverse cycle air conditioning
Solar panels
Great amount of additional storage understair and in the roof space
Separate downstairs Laundry and powder room
Superb outdoor entertaining area with vergola and bi - fold doors to dining area
1 Secure garage
This fantastic property is a winner on all fronts, a lovely place to call home or with 3 large bedrooms could also be a perfect investment opportunity, Airbnb?
Surrounded by other quality homes this South East Historic precinct is always tightly held and popular because not only is it quiet and secure but you have cosmopolitan shopping, entertaining and some of the very best eateries all on your door step.
All information provided has been obtained from sources we believe to be accurate, however, we cannot guarantee the information is accurate and we accept no liability for any errors or omissions (including but not limited to a property's land size, floor plans and size, building age and condition) Interested parties should make their own enquiries and obtain their own legal advice. Should this property be scheduled for auction, the Vendor's Statement may be inspected at our office, 97 Wright Street, Adelaide for 3 consecutive business days immediately preceding the auction and at the auction for 30 minutes before it starts.
For any further information including inspection times please contact,
Andrew Downing, The City Specialist on 0404 882 311.
This immaculate, Torrens Title Townhouse has been thoughtfully renovated with an emphasis on indoor/outdoor living and entertaining. The current owners can attest to many a happy day spent with family and friends enjoying a drink and a BBQ at the remodeled back of the property or just sitting back with a good book after a hard day! If you want to expend a little more energy you have the lovely Victoria Parklands only a couple of hundred metres away.
The Why To Buy 🙂
3 Large bedrooms
Superbly renovated kitchen with gas cooking and movable island bench
Spacious separate lounge
Lovely renovated bathroom
Reverse cycle air conditioning
Solar panels
Great amount of additional storage understair and in the roof space
Separate downstairs Laundry and powder room
Superb outdoor entertaining area with vergola and bi - fold doors to dining area
1 Secure garage
This fantastic property is a winner on all fronts, a lovely place to call home or with 3 large bedrooms could also be a perfect investment opportunity, Airbnb?
Surrounded by other quality homes this South East Historic precinct is always tightly held and popular because not only is it quiet and secure but you have cosmopolitan shopping, entertaining and some of the very best eateries all on your door step.
All information provided has been obtained from sources we believe to be accurate, however, we cannot guarantee the information is accurate and we accept no liability for any errors or omissions (including but not limited to a property's land size, floor plans and size, building age and condition) Interested parties should make their own enquiries and obtain their own legal advice. Should this property be scheduled for auction, the Vendor's Statement may be inspected at our office, 97 Wright Street, Adelaide for 3 consecutive business days immediately preceding the auction and at the auction for 30 minutes before it starts.
For any further information including inspection times please contact,
Andrew Downing, The City Specialist on 0404 882 311.

