2 Hollyoaks Court, HAPPY VALLEY
built for the modern family
Situated in the leafy streets of Horndale Park Estate this owner built home is surrounded by other quality homes as well as parks, schools and local amenities. From its beautiful front gardens, through updated living areas to the stunning pitched entertaining area and huge carport this family home has it all.
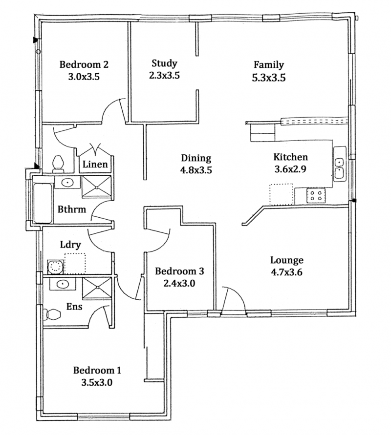
Offering three bedrooms plus study, master with ensuite, formal lounge, stunning renovated kitchen with high quality appliances including Miele dishwasher, dining adjacent plus a second family room with large open servery to the kitchen.
Outside you will find a colour bond pitched veranda complete with cafe blinds for year round entertaining with friends and family, established gardens and lawn area a huge double carport with auto roller doors can house up to four cars securely plus the added extra of a 6 month old shed, also with two roller doors either for storage, or safely store more cars, perfect for tradies or car enthusiasts.
Other features of the home include ducted evaporative cooling and gas heating, for year round comfort, floating timber veneer flooring, large 10kl rain water tank with pump and Termimesh termite protection. Whether you have been looking for a modern family home that you can move into without lifting a finger, or you need garaging for your cars and toys, your search is over. Call Mike & Zoe today for more details.
Offering three bedrooms plus study, master with ensuite, formal lounge, stunning renovated kitchen with high quality appliances including Miele dishwasher, dining adjacent plus a second family room with large open servery to the kitchen.
Outside you will find a colour bond pitched veranda complete with cafe blinds for year round entertaining with friends and family, established gardens and lawn area a huge double carport with auto roller doors can house up to four cars securely plus the added extra of a 6 month old shed, also with two roller doors either for storage, or safely store more cars, perfect for tradies or car enthusiasts.
Other features of the home include ducted evaporative cooling and gas heating, for year round comfort, floating timber veneer flooring, large 10kl rain water tank with pump and Termimesh termite protection. Whether you have been looking for a modern family home that you can move into without lifting a finger, or you need garaging for your cars and toys, your search is over. Call Mike & Zoe today for more details.

