21 Light Road, COROMANDEL VALLEY
set your sights on this
Offering the character of yesteryear but with all the mod cons, this gorgeous home sits on a generous 1,121 sqm block. If you looking to please the whole family - this is the one!
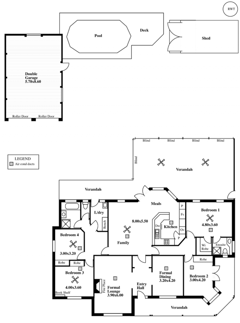
Situated in this picturesque suburb, surrounded by other quality homes, this family friendly property will impress the most fastidious of buyers. Featuring a functional floorplan that consists of four bedrooms, master with ensuite and walk in robe, separate formal lounge and dining room, complete with high feature ceilings, cornices and archways. The open plan family room, with large picture windows, take advantage of the beautiful outlook and is adjacent to the timber kitchen with new stainless steel appliances, dishwasher and handy double fridge space. With ducted evaporative cooling throughout plus gas heating for year round comfort.
Entertainers, prepare to be impressed by the spectacular outdoor living area, currently set up with wall mounted plasma tv, couches and dining setting. Relax with friends all year round as this fantastic space is surrounded by cafe blinds and offers both lighting and ceiling fans to ad to the enjoyment.
Towards the rear of the block is the added extra of a sparkling swimming pool with timber deck just in time for summer! The tradie or auto enthusiast will love the abundance of off street parking as well as drive through access to the brick double garage/shed. High on style, inside and out - don't miss out on this opportunity to own a real gem in the hills, for more details or inspection times please call Mike or Zoe today.
Situated in this picturesque suburb, surrounded by other quality homes, this family friendly property will impress the most fastidious of buyers. Featuring a functional floorplan that consists of four bedrooms, master with ensuite and walk in robe, separate formal lounge and dining room, complete with high feature ceilings, cornices and archways. The open plan family room, with large picture windows, take advantage of the beautiful outlook and is adjacent to the timber kitchen with new stainless steel appliances, dishwasher and handy double fridge space. With ducted evaporative cooling throughout plus gas heating for year round comfort.
Entertainers, prepare to be impressed by the spectacular outdoor living area, currently set up with wall mounted plasma tv, couches and dining setting. Relax with friends all year round as this fantastic space is surrounded by cafe blinds and offers both lighting and ceiling fans to ad to the enjoyment.
Towards the rear of the block is the added extra of a sparkling swimming pool with timber deck just in time for summer! The tradie or auto enthusiast will love the abundance of off street parking as well as drive through access to the brick double garage/shed. High on style, inside and out - don't miss out on this opportunity to own a real gem in the hills, for more details or inspection times please call Mike or Zoe today.

