261 Wright Street, ADELAIDE
Sold By Andrew Downing, The City Specialist!
This beautiful Bluestone fronted Cottage, circa 1880 has been tastefully renovated throughout by maintaining the lovely heritage features for which this period is renowned for and incorporating contemporary fixtures and fittings.
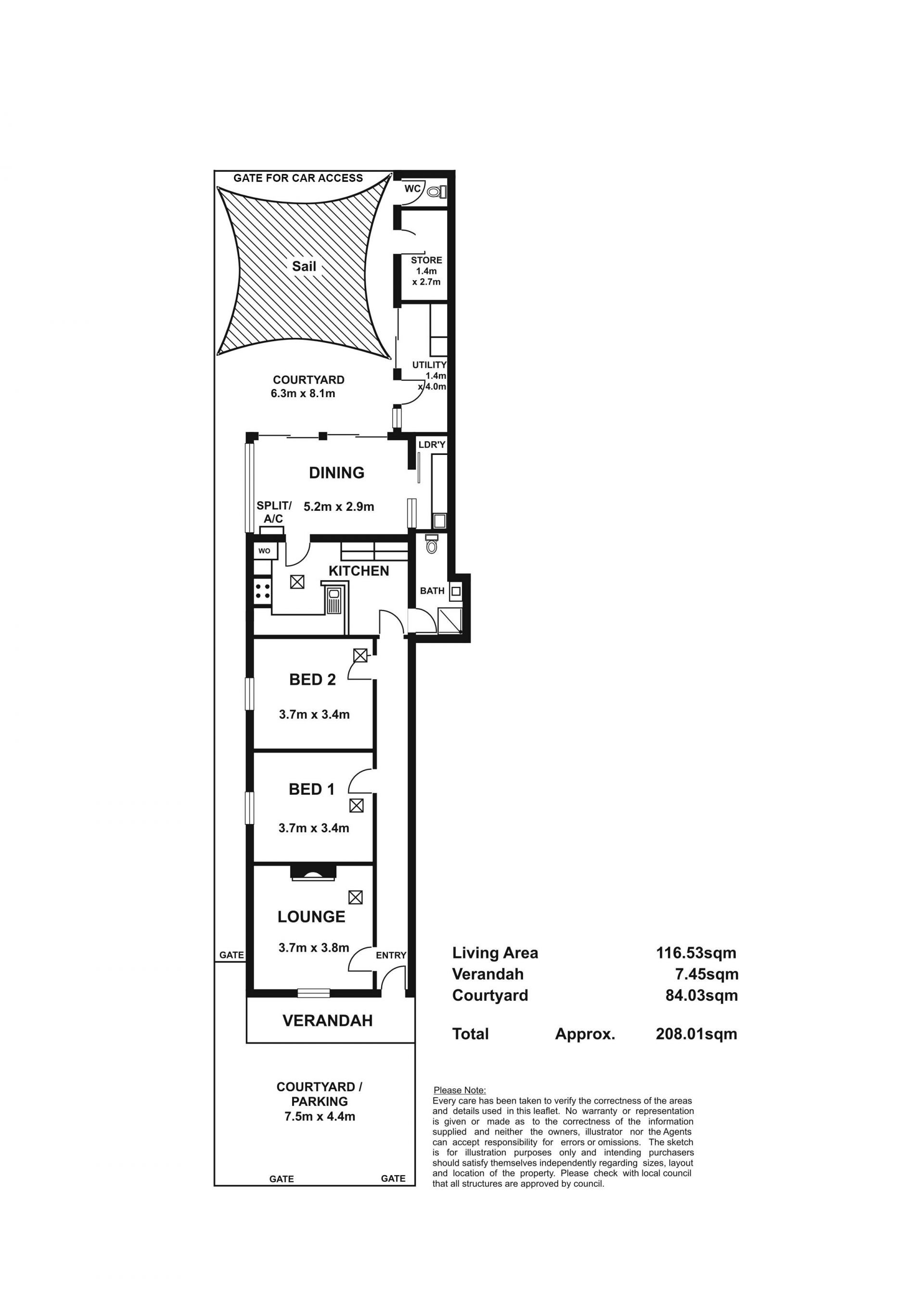
Set on a good size piece of land (232 sqm) approx and situated on one of Adelaide's best tree lined streets you are in the thick of the funky urban buzz which is the South West Market Precinct!
The Why To Buy 🙂
Torrens Title
3 Spacious double bedrooms
Updated kitchen with gas cooking
Stunning polished floorboards throughout
3.3 Metre ceilings with heritage cornicing & fireplace
Ducted Air - conditioning & reverse cycle split system
Sparkling bathroom and separate Euro style laundry
Gorgeous back courtyard with established garden and rear access
Separate utility room, workshop/storage and outside toilet
1 Off street car park
Auction is on Saturday, March 02 at 10am, Unless Sold Prior.
This spectacular house will appeal to all buyer groups and with a location that is an easy walk to the Central Market, Gouger St and some of the best cafe's, Pubs, Wine Bars & Public Transport you will love living here.
All information provided has been obtained from sources we believe to be accurate, however, we cannot guarantee the information is accurate and we accept no liability for any errors or omissions (including but not limited to a property's land size, floor plans and size, building age and condition) Interested parties should make their own enquiries and obtain their own legal advice. Should this property be scheduled for auction, the Vendor's Statement may be inspected at our office, 43 Sturt Street, Adelaide for 3 consecutive business days immediately preceding the auction and at the auction for 30 minutes before it starts.
For any further information please contact, Andrew Downing, The City Specialist on 0404 882 311.
Set on a good size piece of land (232 sqm) approx and situated on one of Adelaide's best tree lined streets you are in the thick of the funky urban buzz which is the South West Market Precinct!
The Why To Buy 🙂
Torrens Title
3 Spacious double bedrooms
Updated kitchen with gas cooking
Stunning polished floorboards throughout
3.3 Metre ceilings with heritage cornicing & fireplace
Ducted Air - conditioning & reverse cycle split system
Sparkling bathroom and separate Euro style laundry
Gorgeous back courtyard with established garden and rear access
Separate utility room, workshop/storage and outside toilet
1 Off street car park
Auction is on Saturday, March 02 at 10am, Unless Sold Prior.
This spectacular house will appeal to all buyer groups and with a location that is an easy walk to the Central Market, Gouger St and some of the best cafe's, Pubs, Wine Bars & Public Transport you will love living here.
All information provided has been obtained from sources we believe to be accurate, however, we cannot guarantee the information is accurate and we accept no liability for any errors or omissions (including but not limited to a property's land size, floor plans and size, building age and condition) Interested parties should make their own enquiries and obtain their own legal advice. Should this property be scheduled for auction, the Vendor's Statement may be inspected at our office, 43 Sturt Street, Adelaide for 3 consecutive business days immediately preceding the auction and at the auction for 30 minutes before it starts.
For any further information please contact, Andrew Downing, The City Specialist on 0404 882 311.

