296 Diagonal Road, OAKLANDS PARK
The ideal investment opportunity
This one owner home solid brick home will have instant appeal.
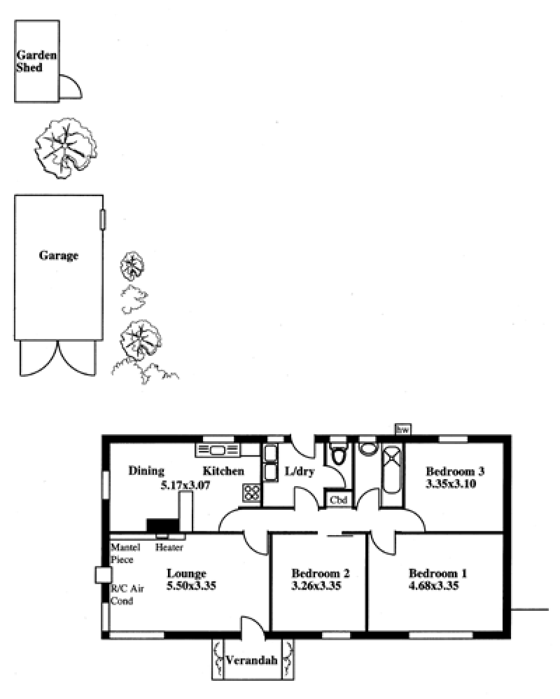
Sited opposite Westfield Marion on 700sqm allotment, it has been lovingly maintained over the years. Good size formal lounge with gas heating and air conditioner, large eat-in kitchen, three good sized bedrooms with robes, bathroom, new w.c and separate laundry.
Large private rear gardens with garage. A rare opportunity to purchase at a realistic price.
Sited opposite Westfield Marion on 700sqm allotment, it has been lovingly maintained over the years. Good size formal lounge with gas heating and air conditioner, large eat-in kitchen, three good sized bedrooms with robes, bathroom, new w.c and separate laundry.
Large private rear gardens with garage. A rare opportunity to purchase at a realistic price.

