3 Grooms Way, WOODCROFT
the lifestyle you've been waiting for
This magnificent, family home will impress. Offering everything todays modern family need and want and situated on a generous 930sqm allotment.
Nestled at the end of a quiet court in this blue chip location, it is only a short stroll to the local reserve and tennis courts and handy to your choice of schools and shops.
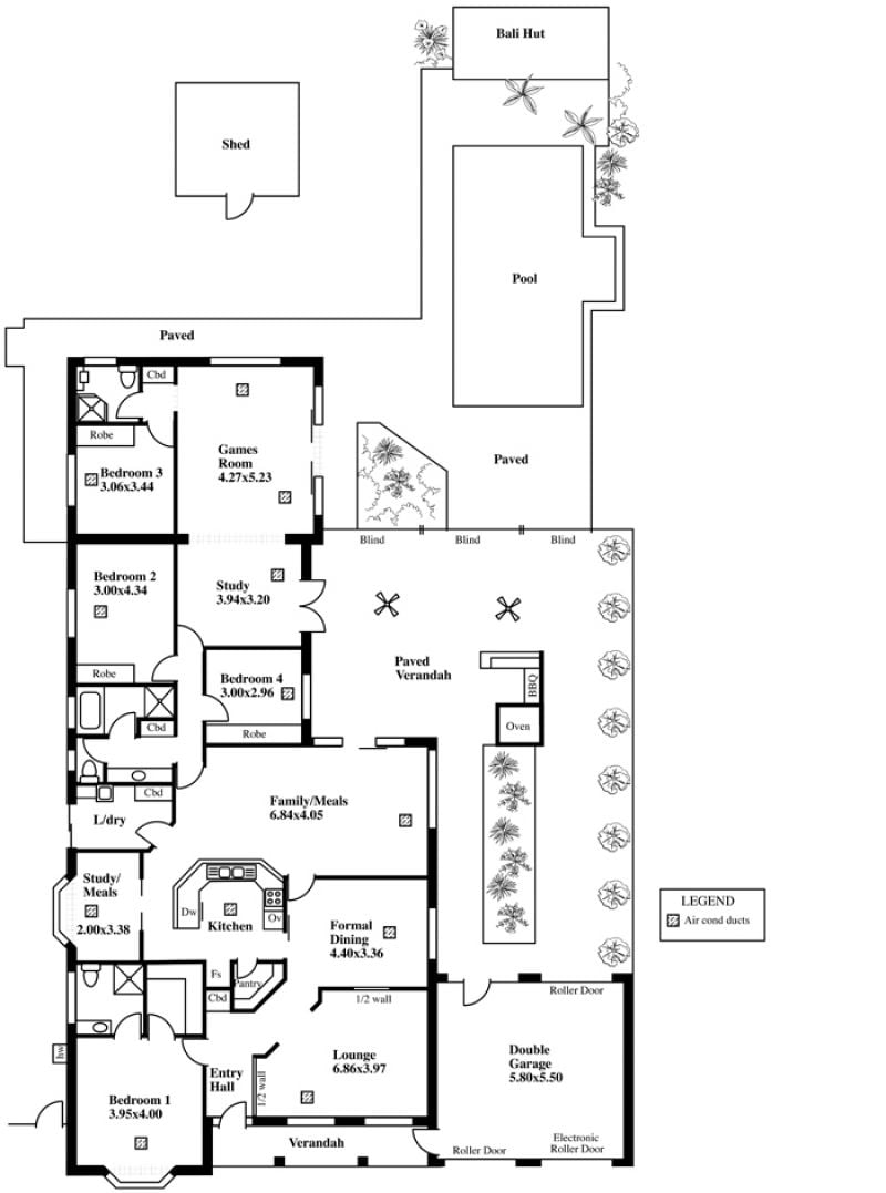
With plenty of living space for the whole family, the floorplan is great for those needing room to grow, inside and out! Featuring four bedrooms, master with bay window, ensuite and walk in robe, formal lounge and dine, central kitchen overlooking the family/ meals area AND a huge rumpus/games room, ideal for the pool table or somewhere for the teenagers to retreat, as this wing of the home houses bedrooms 3 and 4 as well as a handy third bathroom.
The resort style living outside will have you the envy of all your friends.... Massive, all weather pitched entertaining area complete with cafe blinds and pizza oven.
Relax under the Bali hut and Watch the kids splash around in the fully tiled, salt chlorinated in ground pool. So many extras including ducted reverse cycle heating and cooling, dishwasher, solar blanket for the pool, sub irrigation and more...
Nestled at the end of a quiet court in this blue chip location, it is only a short stroll to the local reserve and tennis courts and handy to your choice of schools and shops.
With plenty of living space for the whole family, the floorplan is great for those needing room to grow, inside and out! Featuring four bedrooms, master with bay window, ensuite and walk in robe, formal lounge and dine, central kitchen overlooking the family/ meals area AND a huge rumpus/games room, ideal for the pool table or somewhere for the teenagers to retreat, as this wing of the home houses bedrooms 3 and 4 as well as a handy third bathroom.
The resort style living outside will have you the envy of all your friends.... Massive, all weather pitched entertaining area complete with cafe blinds and pizza oven.
Relax under the Bali hut and Watch the kids splash around in the fully tiled, salt chlorinated in ground pool. So many extras including ducted reverse cycle heating and cooling, dishwasher, solar blanket for the pool, sub irrigation and more...

