3 Mooringe Avenue, PLYMPTON
Huge land, huge shed!
Contact Pete Fallon for viewing times
Located in the heart of Plympton, between the city and the sea, this character home on a huge block is sure to please. Close to trams taking you to the CBD or Glenelg, great quality schools including Plympton International College and Immanuel College nearby, and Kurralta Park shopping centre only a short walk, this location is going to appeal to a range of buyers.
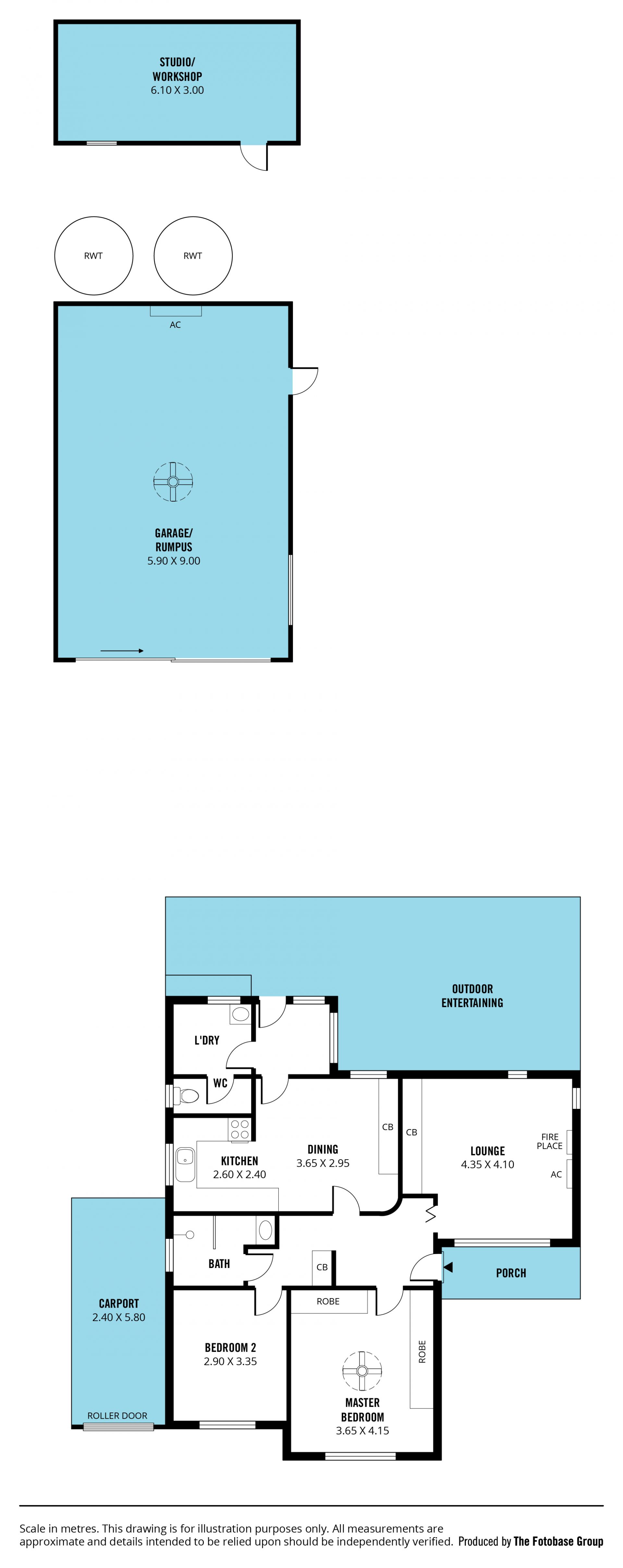
As you approach this solid brick, character home you will appreciate the well maintained gardens at the front. Entering the home you are greeted with a formal lounge room, a perfect place to unwind from a busy day. The bedrooms are absolutely huge, and are conveniently located near the updated bathroom. The master bedroom features a ceiling fan and double glazed windows. The kitchen is well appointed with bench and cupboard space, dishwasher and gas cooktop and the dining room is adjacent to the kitchen. For year round comfort, split system air conditioning has been installed and also there is a fireplace for those cold winter nights. Solar panels have also been installed and are currently on a 52c feed in tariff.
The real treat is when you head outside. Sitting on a 660sqm block there is so much room to move around. A veranda attached to the home is the perfect place to entertain family and friends while watching the kids run around on the lawn. To the side of the property are well established fruit trees, perfect for those summer fruit picking days. On the property is also a fully lined and air conditioned shed with wooden flooring - the perfect place to run a dance studio, use as a teenagers retreat or to store all the toys. With multiple other garden sheds on site there are so many options for how to use this space. Plenty of rainwater and undercover parking finish off this beautiful property.
With everything available, make 3 Mooringe Avenue Plympton the top of the shopping list. Book your viewing today!
For more information or to register your interest contact Pete Fallon
Located in the heart of Plympton, between the city and the sea, this character home on a huge block is sure to please. Close to trams taking you to the CBD or Glenelg, great quality schools including Plympton International College and Immanuel College nearby, and Kurralta Park shopping centre only a short walk, this location is going to appeal to a range of buyers.
As you approach this solid brick, character home you will appreciate the well maintained gardens at the front. Entering the home you are greeted with a formal lounge room, a perfect place to unwind from a busy day. The bedrooms are absolutely huge, and are conveniently located near the updated bathroom. The master bedroom features a ceiling fan and double glazed windows. The kitchen is well appointed with bench and cupboard space, dishwasher and gas cooktop and the dining room is adjacent to the kitchen. For year round comfort, split system air conditioning has been installed and also there is a fireplace for those cold winter nights. Solar panels have also been installed and are currently on a 52c feed in tariff.
The real treat is when you head outside. Sitting on a 660sqm block there is so much room to move around. A veranda attached to the home is the perfect place to entertain family and friends while watching the kids run around on the lawn. To the side of the property are well established fruit trees, perfect for those summer fruit picking days. On the property is also a fully lined and air conditioned shed with wooden flooring - the perfect place to run a dance studio, use as a teenagers retreat or to store all the toys. With multiple other garden sheds on site there are so many options for how to use this space. Plenty of rainwater and undercover parking finish off this beautiful property.
With everything available, make 3 Mooringe Avenue Plympton the top of the shopping list. Book your viewing today!
For more information or to register your interest contact Pete Fallon

