409 Commercial Road, MOANA
combining character with quality and class
Nestled in, and overlooking the tightly held 'Old Survey' section of Moana, this property boasts loads of features including fantastic panoramic views across sand dunes, the sea and stretches along the entire coast to Cape Jervois.
Set on a generous 829m2 parcel of land, with plenty of off street parking for multiple vehicles, caravan and/or boat if required.
As soon as you walk through the secure double gated entry, you soon realise this property has been extremely well maintained and cared for by the current owners. The home was built in the early 1990's, it has an impressive wood clad facade.
Inside offers a rare, and most appealing combination of polished timber floors, high raked ceilings with exposed timber beams and large colonial windows to frame the views.
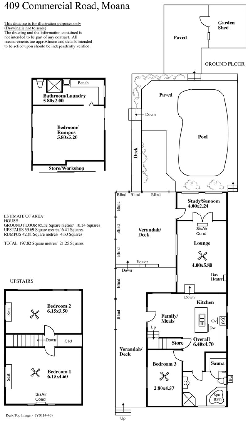
The kitchen overlooks the dining/meals area and has an open plan aspect. It is fitted with stainless steel appliances including dishwasher, large oven with gas cooktop and double sink with pura tap.
Bedroom 3 is located downstairs and is a good size, it is fitted with a ceiling fan and new carpets have been laid. The spacious bathroom comes complete with corner shower, with updated shower screen, a corner spa bath, and a sauna.
The main living or lounge room has impressive high cathedral like ceilings and is fitted with split system air conditioning and a gas heater for year round comfort.
French doors give access to the study/sunroom/4th bedroom which is located at the rear of the home. There are 2 large bedrooms upstairs, the main is fitted with a split system air conditioner, both offer ceiling fans and boast captivating outlooks.
Outside improvements include an impressive side deck that flows to the large all weather entertaining area. This space comes complete with fitted cafe blinds, and overlooks the rear yard, it is the ideal place to either entertain with friends and family or simply relax and soak up the views.
The rear yard consists of a sparkling in-ground salt chlorinated solar heated pool, a rear garden or tool shed, and there is even enough room for a well established vegie patch.... But wait - there's more. There is a large rumpus room or teenage retreat, or an ideal self contained granny flat that is located adjacent the swimming pool.
This is where the laundry and the 2nd bathroom are located. There is also a small workshop or storage space for the handyman. This property is worth serious consideration and an inspection is highly recommended.
For further details, or for additional information or inspection times call David Hams on 0402204841
Set on a generous 829m2 parcel of land, with plenty of off street parking for multiple vehicles, caravan and/or boat if required.
As soon as you walk through the secure double gated entry, you soon realise this property has been extremely well maintained and cared for by the current owners. The home was built in the early 1990's, it has an impressive wood clad facade.
Inside offers a rare, and most appealing combination of polished timber floors, high raked ceilings with exposed timber beams and large colonial windows to frame the views.
The kitchen overlooks the dining/meals area and has an open plan aspect. It is fitted with stainless steel appliances including dishwasher, large oven with gas cooktop and double sink with pura tap.
Bedroom 3 is located downstairs and is a good size, it is fitted with a ceiling fan and new carpets have been laid. The spacious bathroom comes complete with corner shower, with updated shower screen, a corner spa bath, and a sauna.
The main living or lounge room has impressive high cathedral like ceilings and is fitted with split system air conditioning and a gas heater for year round comfort.
French doors give access to the study/sunroom/4th bedroom which is located at the rear of the home. There are 2 large bedrooms upstairs, the main is fitted with a split system air conditioner, both offer ceiling fans and boast captivating outlooks.
Outside improvements include an impressive side deck that flows to the large all weather entertaining area. This space comes complete with fitted cafe blinds, and overlooks the rear yard, it is the ideal place to either entertain with friends and family or simply relax and soak up the views.
The rear yard consists of a sparkling in-ground salt chlorinated solar heated pool, a rear garden or tool shed, and there is even enough room for a well established vegie patch.... But wait - there's more. There is a large rumpus room or teenage retreat, or an ideal self contained granny flat that is located adjacent the swimming pool.
This is where the laundry and the 2nd bathroom are located. There is also a small workshop or storage space for the handyman. This property is worth serious consideration and an inspection is highly recommended.
For further details, or for additional information or inspection times call David Hams on 0402204841

