9 Troutbeck Crescent, HUNTFIELD HEIGHTS
invest or nest
This solid brick home, situated close to the local school & oval, will suit first homebuyers looking to enter the market. Currently tenanted for $240 pw until the end of July with possibility to re sign, also makes this a great opportunity to any potential landlord looking for an investment property.
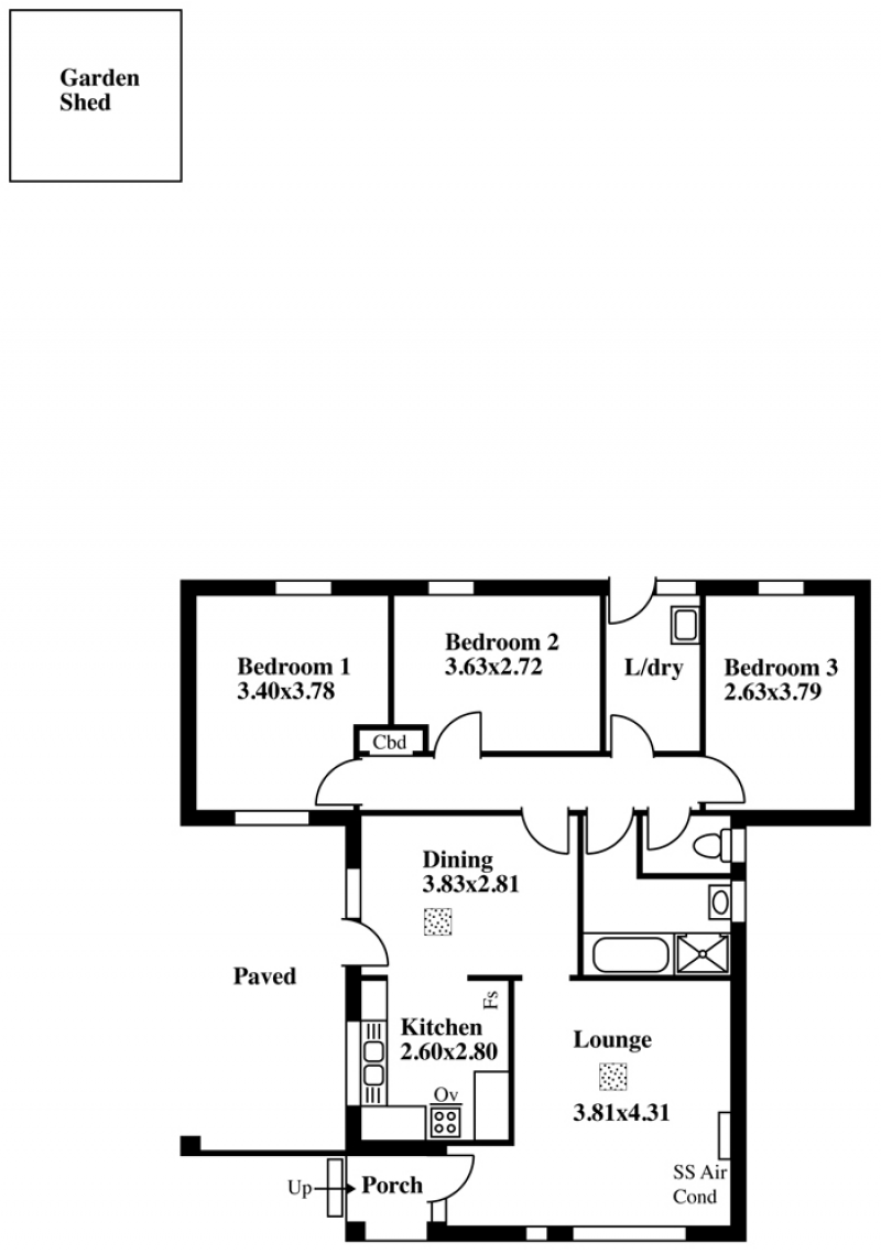
Offering three bedrooms, formal lounge room, kitchen with adjacent meals area, polished timber floors throughout and split system heating & cooling for year round comfort.
Outside is a paved courtyard, large backyard, handy garden shed and drive through access to the backyard with room to put a large garage if preferable.
Also including a new hot water service, skylights and extra storage cupboards, this home is priced to sell, don't miss out and register your interest with Mike & Zoe today.
Offering three bedrooms, formal lounge room, kitchen with adjacent meals area, polished timber floors throughout and split system heating & cooling for year round comfort.
Outside is a paved courtyard, large backyard, handy garden shed and drive through access to the backyard with room to put a large garage if preferable.
Also including a new hot water service, skylights and extra storage cupboards, this home is priced to sell, don't miss out and register your interest with Mike & Zoe today.

