39 Brookland Valley Drive, WOODCROFT
Family Home with the Lot!
Fantastic value in this popular location, this attractive and affordable home is situated amongst other quality properties and only minutes from shops, schools and parks in this family friendly area that is just right for those looking for room to grow.
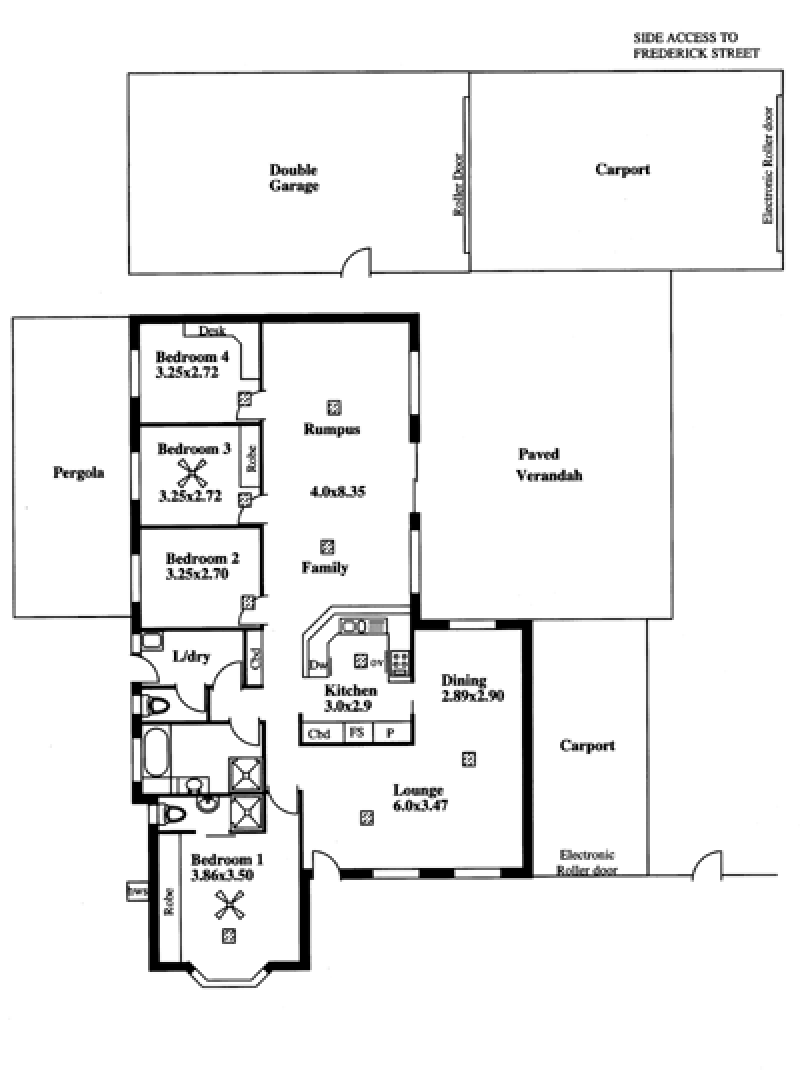
Featuring everthing you need and more: four bedrooms, ensuite to master, heritage style main bathroom, formal lounge and dine, the beautiful new kitchen with stainless steel appliances overlooks the family room and there is ducted reverse cycle heating and cooling for year round comfort. Situated on a large corner block with dual street access and plenty of off street parking for those with caravans/boats/trailers etc, including lock up undercover parking for THREE cars as well as drive thru access to the concrete floor garage.
Paved undercover entertaining area, lawn for the kids -even room for a pool! So many added extras including security shutters, 3 phase power, auto rollerdoors, security system and much more. Floorplan and virtual tours to appear here soon. For further information or to arrange an inspection phone Mike on 0417877219
Featuring everthing you need and more: four bedrooms, ensuite to master, heritage style main bathroom, formal lounge and dine, the beautiful new kitchen with stainless steel appliances overlooks the family room and there is ducted reverse cycle heating and cooling for year round comfort. Situated on a large corner block with dual street access and plenty of off street parking for those with caravans/boats/trailers etc, including lock up undercover parking for THREE cars as well as drive thru access to the concrete floor garage.
Paved undercover entertaining area, lawn for the kids -even room for a pool! So many added extras including security shutters, 3 phase power, auto rollerdoors, security system and much more. Floorplan and virtual tours to appear here soon. For further information or to arrange an inspection phone Mike on 0417877219

